邰欣地堡100期-透天B2
2188
萬
38.4
萬/坪
詳細資料
周邊
特色說明
地圖街景
實價登錄
南北玉辰加盟店
(大頁不動產仲介有限公司)
06-2003389
預約看屋
線上提問
邰欣地堡100期-透天B2
S2868755
062003389
預約
提問
加入我們
人才招募
加盟店專區
服務據點
留言
追蹤清單
一般會員
帳號
此欄位必填!
密碼
此欄位必填!
登入
送出註冊/登入視同您已閱讀,並同意
權利義務說明內容
註冊
|
忘記密碼
此欄位必填!
此欄位必填!
此欄位必填!
登入
忘記密碼
|
忘記密碼
Email
簡訊
請您輸入店代號及帳號,我們會儘速將您的密碼傳送至您的信箱或手機簡訊。
店代號
帳 號
送出
房屋媽媽 跨品牌房仲聯賣網
[首頁]
首頁
出售
找售案
買方流程
應繳稅費
房貸試算
買方權益
買方需求留言
買賣百科
履約保證
出售須知
賣方流程
應繳稅費
賣方權益
賣方需求留言
買賣百科
履約保證
新成屋
出租
找租案
出租流程
租方權益
承租方權益
出租需求留言
出租百科
實用工具
公告土地
現值查詢
重購退土
增稅試算
贈與稅試算
內政部實
價查詢網
房地合一
稅試算
關於我們
公司簡介
免責聲明
服務條款
隱私權聲明
版權宣告
活動資訊
活動花絮
產業動態
特約代書與廠商
加入我們
人才招募
加盟店專區
服務據點
留言
追蹤清單
買屋
/
台南市
/
安南區
/
邰欣地堡100期-透天B2
請注意,上方物件照片如有街景,為物件附近環境介紹,非物件本身。
編號:
S2868755
複製分享
2188
萬
(含車位價)
38.4
萬/坪
貸款試算
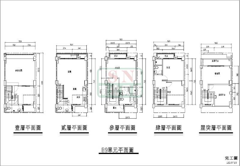
格局
3房 2 廳 2 衛
格局
權狀坪
56.98 坪
權狀坪
地址
安南區樂活二街
型態/類別
透天 /住家
樓別/樓高
1-4 /4
主+附
56.98 坪
地坪
南北玉辰加盟店
(大頁不動產仲介有限公司)
台南市東區小東路192號
06-2003389
立即預約看屋
線上提問
先生
小姐
方便聯絡時間
皆可
早上
下午
晚上
預約看屋
先生
小姐
線上提問
相似物件推薦
商60.設計...
2280
萬
建坪:
56.15
5
房
安南區同安路
鄰商60正怡...
1888
萬
1968萬
建坪:
56.48
4
房
安南區怡安路一段
邰欣地堡10...
2188
萬
建坪:
56.98
3
房
安南區樂活二街
安南怡安路近...
1888
萬
建坪:
56.48
4
房
安南區
怡安路黃金超...
1888
萬
建坪:
56.48
4
房
安南區
新成屋-安中...
1780
萬
建坪:
57.46
5
房
安南區安中路四段
怡安路整新2...
1888
萬
1980萬
建坪:
56.48
4
房
安南區怡安路一段
海東國小全新...
1780
萬
建坪:
57.46
5
房
安南區安中路四段
物件詳細資料
點閱次數:2973次
房屋資訊
車位/備註
私有 車庫
現況
其他
謄本資料
主建物
51.48 坪
附屬建物
5.5 坪
公共設施
車位坪
地下室
地坪
謄本主要用途
*小數點取二位第三位無條件捨去
特色說明
15米府安路╳10米樂活二街,2,669坪整體開發,水岸綠帶首排,近百戶珍稀透天
位居北台南產業經濟核心重要交通樞紐,近南科園區、科工園區
往東接軌國道8號、中山高直達南科,80米台江大道橫跨東西向,連結大安南便捷生活。
地圖/街景
地圖街景建置中
實價登錄